
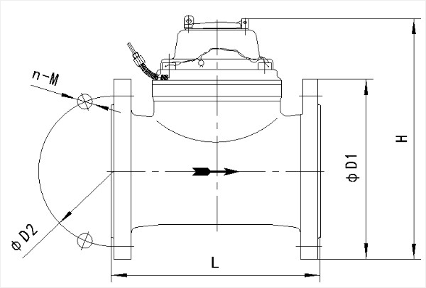
LXLG型光電直讀水表由水平螺翼基表、光電表的計數部件、表罩組件、金屬軟管組件等組成,該產品既有供人工抄讀的字輪,也有供電子抄讀的接口,在電子抄讀時,通過安裝在字輪兩側的紅外收發對管檢測字輪的位置得出對應于水量的信號,再通過后續系統可實現水表的遠程抄讀及數據管理。
該產品適用于冷水或熱水的計量,對污水及有腐蝕性的液體不能使用。指示機構采用磁耦合傳動結構,具備防磁干擾功能。
計數機構單獨密封,表盤讀數不受水質影響,讀數永久清晰;
采用光電直讀技術讀取字輪數據,非機械接觸,不會因為機械松動而引起讀數誤差;
特殊的編碼方式,不存在讀數死區,字輪轉動到任何位置都可以保持機械讀數和電子讀數一致;
水表平時工作無需電源,無功耗,抄表時瞬間供電即可;
遠程抄表讀取的是實時水表數值,無需初始化;
水溫≤30℃(冷),水溫≤90℃(熱);
壓力:不大于1Mpa;
最大壓力損失:0.063mPa;
公稱口徑:DN50-DN300;
讀數范圍:0.0001~99999.99;
工作環境:B級;
工作電壓:36V(MBUS接口)或12V(RS485接口);
上游流場敏感度等級U10;下游流場敏感度等級D5;
傳輸方式分為RS-485總線4線、MBUS總線2線;
通訊傳輸速率:2400bps通訊傳輸最大距離:1200m。



< 上一篇
沒有了!
下一篇 >
LXSGY型無線遠傳水表